0988706411
15+ Mẫu biệt thự 2 tầng mặt tiền 9m đầy đủ bản vẽ |
|
| Chủ đầu tư: | Địa điểm: |
| Loại hình: Mẫu biệt thự 2 tầng đẹp | Chi phí dự kiến: |
| Số tầng: 2 | Diện tích: |
| Phong cách kiến trúc: | |
| Đơn vị thiết kế: Kiến trúc An Nhiên | Năm thực hiện: |
Những mẫu biệt thự đẹp đáng ứng được yêu cầu cao về công năng hiện nay đầu tiên chúng ta phải nhắc tới mẫu biệt thự 2 tầng mặt tiền 9m được thiết kế theo nhiều phong cách kiến trúc hiện đại. Không chỉ có phối cảnh được trang trí đẹp, ngôi nhà còn được thiết kế công năng khoa học đảm bảo yêu cầu cao giúp các thành viên luôn cảm thấy thoải mái và ấm cúng. Dưới đây, chúng tôi sẽ giới thiệu tới bạn đọc những mẫu nhà mặt tiền 9m với những ý tưởng thiết kế mới mẻ mang lại thẩm mỹ cao cho ngoại thất và nhiều giải pháp bố trí công năng khoa học.

Cách trang trí mặt tiền trong mẫu biệt thự 2 tầng mái Nhật mặt tiền 9m là một biểu hiện tinh tế, kết hợp hài hòa các yếu tố màu sắc và vật liệu trang trí. Bản vẽ thiết kế không chỉ đẹp mắt mà còn thể hiện sự chính xác trong bố trí các phòng và công năng, tạo ra sự đồng nhất với bản vẽ phối cảnh. Các chi tiết kiến trúc được xem xét kỹ lưỡng, kết hợp với màu sắc ngoại thất sáng, tạo nên một mặt tiền thoáng đãng và rộng rãi, đạt được đánh giá cao từ các kiến trúc sư.

Màu sắc chủ đạo là gam trắng của sơn ngoại thất, kết hợp với màu xanh hiện đại của ngói mái, mang đến vẻ đẹp hiện đại và mới mẻ cho ngôi nhà. Màu đỏ cánh rán xám của hệ cửa nổi bật và hấp dẫn nhờ vào sự tương phản màu sắc. Sự kết hợp với vật liệu kính cường lực cũng làm cho ngoại thất trở nên hoàn mỹ và đẹp mắt.

Xu hướng xây dựng nhà của gia đình trẻ ngày nay thường chú trọng vào phong cách kiến trúc hiện đại, đặc trưng bởi những mẫu biệt thự 2 tầng ngang 9m sâu 10m mang đến diện mạo trẻ trung và năng động. Với những đường nét đơn giản và phóng khoáng, phối cảnh ngoại thất của các mẫu nhà này thường được thiết kế theo hướng đơn giản và thoải mái.
Mặt tiền thường sử dụng gam màu trắng làm chủ đạo tạo vẻ đẹp hiện đại và thanh lịch kết hợp mảng tưởng ốp đá tạo sự chắc chắn, khỏe khoắn. Hệ mái bằng giúp tiết kiệm chi phí và tận dụng không gian để tạo điểm nhấn với các tiểu cảnh và khu trồng rau, mang lại không gian sống thực tế và gần gũi với thiên nhiên. Những mẫu biệt thự này không chỉ thể hiện sự hiện đại mà còn tận dụng không gian mặt tiền để tạo ra những điểm nhấn nghệ thuật và phản ánh sở thích, tính cách gia chủ chú trọng đến cuộc sống xanh gần gũi thiên nhiên.

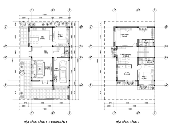
Mẫu thiết kế biệt thự hiện đại 2 tầng mặt tiền 9m thuộc sở hữu của gia đình ông Đặng Trần Tùng tại Hà Đông, Hà Nội. Thiết kế nổi bật về ngoại thất bắt mắt, ấn tượng và sang trọng với cách sử dụng các không gian tối ưu giúp căn biệt thự có được những không gian sống tốt nhất. Ngoại thất nổi bật của phong cách hiện đại được thiết kế với diện tích tổng ô đất là 12mx18m và diện tích xây dựng căn biệt thự đạt 9x14m thiết kế 2 tầng. Cách thiết kế ngoại thất hiện đại, tối giản để tập trung ưu tiên tối ưu không gian nội thất. Mọi yếu tố đều được khai thác, sử dụng một cách linh hoạt để đạt được độ hoàn hảo làm thỏa mãn yêu cầu sử dụng công năng của từng thành viên trong gia đình.

Không chỉ ngoại thất, nội thất của những mẫu biệt thự hiện đại cũng mang nhiều điểm nổi bật và tiện dụng nhất dành cho các thành viên trong gia đình. Gia đình ông Tùng đòi hỏi cao về không gian nội thất bên trong căn nhà. Các gian phòng phải được thiết kế đảm bảo ánh sáng cũng như hệ thống ban công thông thoáng nhất. Với đòi hỏi cao về từng không gian và nhu cầu sử dụng, căn biệt thự được thiết kế 3 phòng ngủ tiện lợi và các không gian được bài trí khoa học, đảm bảo tốt nhất cho nhu cầu sử dụng của gia đình ông Tùng.

Thiết kế ngoại thất ngôi nhà đơn giản, những hình khối phẳng phiu toát lên vẻ thanh thoát, phóng khoáng. Các không gian được thiết kế hài hòa và đảm bảo được tối đa những lợi thế về không gian của ô đất. Diện tích ô đất tương đối rộng, chính vì thế căn biệt thự được thiết kế chính giữa ô đất chia ô đất thành 2 phần trống trước và sau. Riêng phần phía sau được thiết kế nhỏ đảm bảo sự lưu thông không khí tốt nhất.
Việc thiết kế mẫu biệt thự 2 tầng phân chia diện tích để bố trí công năng một cách khoa học, bên hông của ngôi nhà có ngõ nhỏ để việc đi lại thuận tiện tránh việc phải đi qua phòng khách quá nhiều gia gia đình có công việc. Thiết kế sân trước và sân sau vừa đủ đảm bảo cho căn nhà có được những không gian hài hòa nhất.

Khi lên phương án mặt bằng, các Kiến Trúc Sư đã tính toán cách sử dụng nguồn ánh sáng mặt trời một cách linh hoạt để không phụ thuộc vào nguồn ánh sáng đèn điện, điều đó giúp tác động tốt đến cơ thể con người, cùng với đó sự lưu thông không khí luôn được đi kèm. Các phòng đều có cửa sổ hoặc cửa phụ với chất liệu kính là chủ đạo, có thể đóng mở một cách linh hoạt tùy thuộc vào nhiệt độ, hướng gió, chiếu sáng của mặt trời để cân bằng với nhiệt độ bên trong căn phòng. Cùng với đó là hệ thống cây xanh trang trí tăng tính thẩm mỹ, cung cấp khí oxi cần thiết kết hợp với tính năng làm sạch môi trường đảm bảo không gian thoáng mát, sạch sẽ.
Hệ thống tường rào của mẫu biệt thự hiện đại 2 tầng mặt tiền 9m được thiết kế độc đáo với các phần kiến trúc kín đáo và an toàn. Mặt tiền được thiết kế riêng bằng hệ thống tường rào bằng khung sắt thưa đảm bảo được sự thông thoáng cần thiết và phô diễn được những nét đẹp kiến trúc của căn nhà. Cổng được thiết kế khang trang và có mái che đồng màu với mái thái nổi bật nên nét sang trọng và đẳng cấp. Thiết kế cổng với phần cổng chính và cổng phụ tách biệt cũng mang đến sự tiện lợi nhất dành cho gia đình.

Mái thái được thiết kế kiến trúc hình chữ A đảm bảo được khả năng thoát nước tối ưu cũng như khả năng chống nóng, chống ồn tốt và tạo thêm không gian để các phòng bên dưới thoáng mát với sự lưu thông không khí hợp lý. Với màu mái xám xanh này mang đến cho tổng thể căn biệt thự nét đẹp cổ điển nhẹ nhàng, tinh tế và ẩn hiển với nền tường trắng nổi bật lên nét đẹp hiện đại. Cách phối màu vừa cổ điển vừa hiện đại mang đến phong cách hiện đại đặc sắc.
Căn nhà được thiết kế sảnh chính và sảnh phụ. Trước sảnh chính là phần sân khá rộng. Sảnh phụ được thiết kế hành lang bên và cả hai đều thiết kế mái che chằng chính ban công rộng của tầng 2. Đây là cách tận dụng các không gian đảm bảo được sự cân đối cho không gian của căn biệt thự.
Ban công tầng 2 được thiết kế rộng rãi đảm bảo tiện lợi nhất cho thành viên trong gia đình sử dụng và cũng giúp căn nhà có được hệ thống ánh sáng tự nhiên hài hòa nhất. Bên cạnh đó, các tầng lầu cũng được thiết kế hệ thống cửa sổ rộng và kín đáo cần thiết vừa đảm bảo được sự riêng tư cũng như giúp các gian phòng có được ánh sáng tốt nhất. Thiết kế làm hài lòng chủ đầu tư và trở thành một trong những xu hướng thiết kế mới nhất cho kiến trúc nhà ở hiện nay.

Không chỉ ngoại thất bắt mắt, mà kiến trúc nội thất của căn biệt thự này cũng vô cùng nổi bật. Bản vẽ biệt thự chi tiết được các kiến trúc sư gửi tới các gia đình phần nào giúp các gia đình có thể thấy được sự độc đáo và tươi mới của căn biệt thự.
Từ khoảng sân rộng phía trước, đi vào trong là diện tích căn nhà với sảnh chính có mái che hài hòa. Thiết kế gara ô tô trong diện tích xây dựng căn nhà tận dụng được diện tích ô đất cũng như đảm bảo sự tiện lợi nhất cho việc sử dụng không gian. Sảnh chính đi vào là thiết kế phòng khách hiện đại cân đối không gian. Ngăn cách phòng khách và phòng bếp là sảnh phụ được thiết kế thông thoáng và tiện lợi. Bên trong là thiết kế phòng ngủ tầng 1 thích hợp cho các gia đình có người già vì việc đi lại được dễ dàng.
Từ cầu thang thông tầng đi lên, một phòng sinh hoạt chung hướng ban công sảnh phụ được thiết kế đảm bảo cho nhu cầu sử dụng của các thành viên. Bên cạnh đó, một phòng thờ được thiết kế hướng ban công sảnh chính đảm bảo ánh sáng cũng như hướng tốt nhất. 2 phòng ngủ được thiết kế cân đối trong mặt sàn tầng 2 và tất cả các gian phòng ngủ đều được cân đối diện tích và ánh sáng tối ưu. Phòng thờ được đặt ở vị trí trang nghiêm, yên tĩnh và riêng tư.
Đây là một trong những mẫu biệt thự hiện đại 2 tầng mặt tiền 9m nổi bật theo phong cách hiện đại. Thiết kế sáng tạo và hài hòa với tổng thể không gian ô đất và đảm bảo được nhu cầu sử dụng của chủ đầu tư. Các gia đình khi thiết kế căn biệt thự cho gia đình mình nên tham khảo ý kiến của các kiến trúc sư để đảm bảo được không gian sử dụng tốt nhất với các thiết kế hài hòa dành cho từng ô đất nhé!
Mẫu nhà đầu tiên mà chúng tôi muốn giới thiệu là một ngôi biệt thự phù hợp cho những gia đình có từ 3 thế hệ sinh sống.

Những mẫu biệt thự 2 tầng chữ L vừa có tính thẩm mỹ vừa đảm bảo phong thủy vừa đáp ứng được các tiêu chí về công năng khắt khe. Với phong cách hiện đại là giảm thiểu sử dụng các họa tiết hoa văn cầu kì. Ngôi biệt thự được đắp lên mình những mảng kết cấu tuy rất đơn giản nhưng lại toát lên mình vẻ đẹp thanh lịch và đẳng cấp.

Với tone màu trắng chủ yếu được sử dụng. Nên hệ thống cửa gỗ màu nâu được nổi bật lên rất nhiều. Điều này cũng tôn lên vẻ đẹp đẳng cấp- đặc tính của đồ gỗ. Hệ thống mái Thái được cách điệu lợp thành 2 tầng rất sáng tạo. Giúp cho ngôi nhà trông lạ mắt và độc đáo. Tầng 1: bao gồm 1 nhà bếp + phòng ăn, 2WC, 1 phòng khách và 1 phòng ngủ. Tầng 2: bao gồm 3 phòng ngủ, 1 phòng sinh hoạt chung, 1 WC, phòng thờ.


Ngôi nhà được bố trí không gian ăn uống tiếp khách chủ yếu ở tầng 1, các khu vực ngủ nghỉ ở tầng 2. Điều này đã tạo nên một không gian sống rất riêng tư cho các thành viên. Bên cạnh đó, phòng thờ được đặt ở tầng cao nhất và phía trước đúng chất tâm linh người Việt. Một điểm nhấn nữa chình là phòng sinh hoạt chung, nơi mà các thành viên quây quần có thể vui chơi và chia sẻ cũng được sử dụng. Chính điều này đã giúp cho đời sống tinh thần của gia đình có điều kiện được chăm sóc.
Đây là ngôi biệt thự có tầm nhìn tổng quan rất sáng mắt. Bởi chúng chỉ sử dụng một tone màu trắng từ tưởng cho đến cửa ra vào. Tuy nhiên, với các chi tiết được phối với nhiều hình dáng tỉ mỉ giúp ngôi nhà trở nên rất bắt mắt. Hành lang sắt màu đen được sử dụng với các họa tiết hoàng cung đem đến điểm nhấn cho ngôi nhà. Chúng cũng mang đến cảm giác rất hoàng gia giúp ngôi nhà thu hút hơn. Tầng 1: gồm 1 phòng khách, 1 phòng ngủ, 1 WC, 1 nhà ăn+ bếp. Tầng 2: gồm 3 phòng ngủ, 1 phòng sinh hoạt chung, 1 phòng thờ, 2 WC.


Bố cục công năng rất thuận tiện cho gia chủ. Bởi lẽ khu vực tầng 1 chủ yếu được sử dụng để đến khách và ăn uống. Các phòng ngủ chuyên dụng để nghỉ ngơi được bố trí không gian yên tĩnh ở tầng 2. Đây cũng là một ngôi biệt thự rất chú tâm đến không gian sinh hoạt và tâm linh của gia chủ.

Một mẫu biệt thự 2 tầng đẹp mắt với kết cấu chữ L. Ngôi biệt thự này có tầm nhìn tổng quan khá độc đáo với hệ thống mái Thái 3 tầng được xây dựng khéo léo. Không chỉ giúp chống nắng thoát nước mưa tốt mà còn có độ nghiêng vừa phải tạo nên sự quyến rũ mềm mại cho ngôi nhà.

Để giúp ngôi nhà thể hiện đúng phong cách hiện địa của mình các kiến trúc sư đã sử dụng tone màu trắng làm chủ đạo. Điểm vào đó là màu nâu của gỗ và màu xanh của mái Thái.


Tầng 1: gồm 1 phòng ngủ, 1 phòng khách, 1 nhà bếp + phòng ăn, 1 WC. Tầng 2: gồm 2 phòng ngủ, 1 phòng thờ, 1 sân chơi + phơi, 1 WC.


Kết cấu công năng của ngôi biệt thự này rất phù hợp cho ngôi nhà có 2 thế hệ sinh sống với 3 phòng ngủ. Bên cạnh đó, với thiết kế sân chơi và sân phơi ngay trong gia đình rất tiện lợi cho những gia đình sống ở phố.

Ngôi nhà được thiết kế theo phong cách tân cổ điển với những kết cấu sử dụng các khối hình học vừa đơn giản kết hợp với các họa tiết tính tế. Từ đó tạo nên một vẻ đẹp vừa đẳng cấp vừa mang lại nét hoài cổ cung đình.

Tone màu trắng được sử dụng kết hợp với hệ thống cửa gương viền gỗ làm ngôi nhà trở nên ấm cúng hơn. Bên cạnh đó, hệ thống đèn vàng được tô điểm đúng chất đây là nơi để trở về. Một điểm nhấn khác của ngôi nhà chính là hệ thống mái Thái vừa uyển chuyển mềm mại vừa phù hợp với khí hậu tại Việt Nam. Tô điểm cho ngôi nhà là hệ thống cây cảnh khiến ngôi nhà trở nên gần gũi với thiên nhiên hơn. Đây cũng là một điểm góp phần tạo cho ngôi nhà có không khí trong lành hơn. Phù với cho một ngôi nhà kiểu mẫu với tiêu chí “ xanh- sạch- đẹp”.

Một ngôi biệt thự 2 tầng được theo phong cách hiện đại bằng cách sử dụng các mảng tường đơn giản không có nhiều họa tiết cầu kì. Mẫu thiết kế này cũng được thiết kế theo kết cầu hình chữ L với hệ thống mái Thái chạy dọc theo kết cấu các tầng. Để màu sơn được trường tồn theo năm tháng không bị quê thì ngôi nhà đã được sơn bằng tone màu trắng. Với màu nền này hệ thống cửa gương viền đen được làm nổi bật lên cùng với cửa chính là cửa gỗ. Tạo nên vẻ đẹp sang trọng và khỏe khoắn cho ngôi biệt thự. Tầng 1: gồm 1 phòng khách, 1 phòng ngủ, 1 nhà ăn + bếp, 1 WC. Tầng 2: gồm 1 phòng thờ, 3 phòng ngủ và 1 WC.


Phần bố trí công năng rất phù hợp cho gia đình có 3 thế hệ sinh sống với 4 phòng ngủ. Trong đó phòng ngủ ở tầng 1 rất thích hợp cho thế hệ ông bà sinh hoạt.

Điểm nhấn thiết kế lớn nhất của ngôi nhà này chính là kết cấu độc đáo của phần mái. Phần mái được chia thành 2 mảng được dựng nghiêng đối lập nhau. Điều này là một điểm khiến các kiến trúc sư cất công tính toán để vừa tạo nên tính thẩm mỹ cho ngôi nhà. Nhưng cũng làm sao để độ nghiêng phù hợp cho việc thoát nước. Các chi tiết sọc ngang được sử dụng như những điểm gây chú ý tầm nhìn của ngôi nhà. Bởi chúng được tô điểm ở phần trống của mái kết hợp với cửa gương tạo nên kết cấu đẹp và có ý nghĩa lấy sáng cho ngôi nhà. Tone màu trắng chủ yếu được sử dụng kết hợp với đá lót tường đã tạo nên vẻ đẹp thời thượng cho ngôi biệt thự. Tầng 1: gồm 1 phòng ăn+ bếp, 1 phòng khách, 1 phòng ngủ, 1 WC, 1 phòng giặt. Tầng 2: 3 phòng ngủ, 1 phòng làm việc và 1 sân chơi.


Trong bài viết này, chúng tôi đã giới thiệu cho bạn đọc những mẫu biệt thự 2 tầng mặt tiền 9m đẹp, với từng kích thước được thiết kế cụ thể. Hy vọng rằng những mô hình này sẽ mang lại những ý tưởng và gợi ý hữu ích cho bạn khi xây dựng ngôi nhà trong mơ của mình.
Mục lục
Xem hướng nhà
Xem tuổi xây dựng
